Description
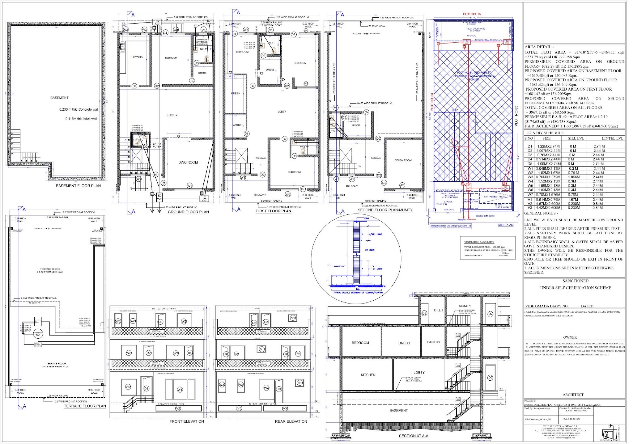
The first step is to conceptualize the design of the government building based on its intended purpose, functionality, and aesthetic requirements. This may involve hiring architects, engineers, and other professionals to develop detailed architectural drawings and plans.
Ensure that the proposed building design complies with local building codes, zoning regulations, and government guidelines. This may include requirements related to building height, setbacks, fire safety, accessibility, and environmental sustainability.





Reviews
There are no reviews yet.